Retour à la liste

Toutes nos maisons sont personnalisables, contactez nous pour un projet personnalisé

Villa

Akoya G2

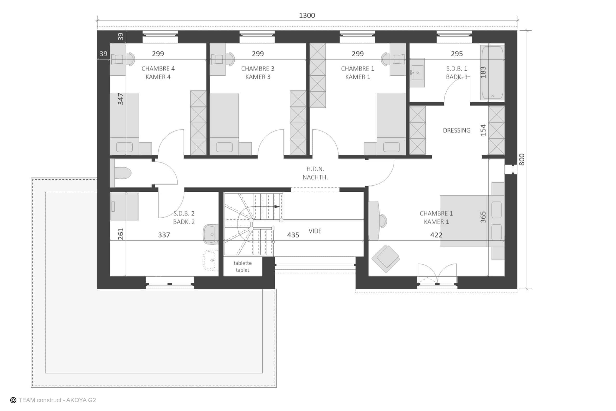
Nombre de chambres
4
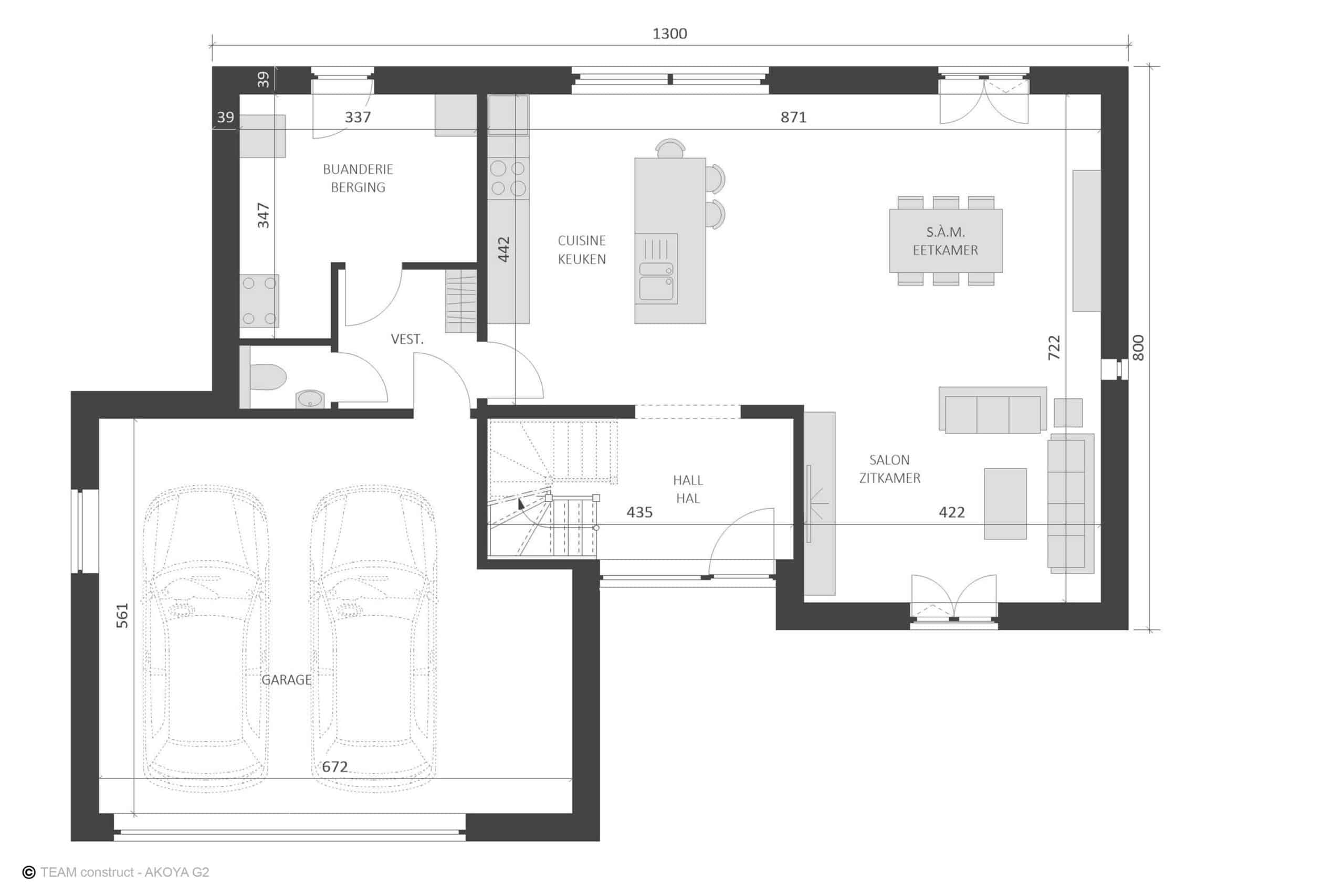
Surface
233 m²
Hauteur sous corniche
5.72 m
Style
Design
Prix : 349.705€ hors frais
Prix : 423.143€ frais compris

Akoya avec toiture plate ou toit en pente avec couverture en ardoises.

Pour vous, nous créons l’architecture de demain : Imaginé de manière très contemporaine grâce à ses grands espaces de vie, le design de cette villa se démarque par ses menuiseries résolument modernes et les décrochements de ses façades bicolores. Dans le grand living de plus de 50m² orientées vers le sud lumière rime avec espace. Dans le garage un espace est prévu pour votre moto ou pour les vélos. Le garage de la version AKOYA G2 est prévu pour 2 voitures. L ’étage avec son beau hall en mezzanine accueille 4 grandes chambres dont une suite parentale avec sa salle de bain et son dressing. Une seconde et grande salle de bain est prévue ainsi qu’un WC séparé.

Tous nos modèles peuvent être personnalisés selon votre demande, façades en crépi ou en briques, combinaisons de couleurs… Différents aménagements de l’étage… Pour plus de détails sur ce modèle, contactez-nous.

Télécharger et imprimer les plans de cette maison Personnaliser cette maison Les témoignages de nos clients