Retour à la liste

Toutes nos maisons sont personnalisables, contactez nous pour un projet personnalisé

Villa

Akoya G2 30

Nombre de chambres
4
Surface
233 m²
Hauteur sous corniche
5.72 m
Style
Design
Prix : 343.487€ hors frais
Prix : 415.619€ frais compris

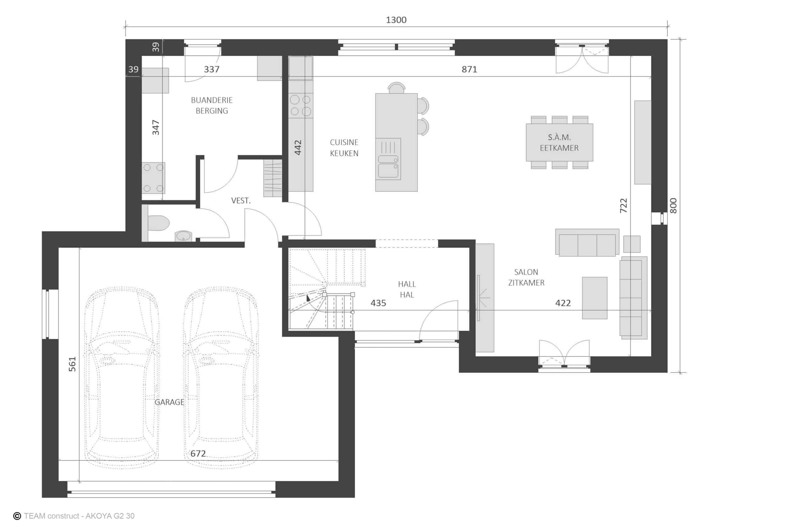
Akoya G2 avec toiture plate ou toiture en pente avec ardoises. Tous nos modèles peuvent être personnalisés selon vos envies.

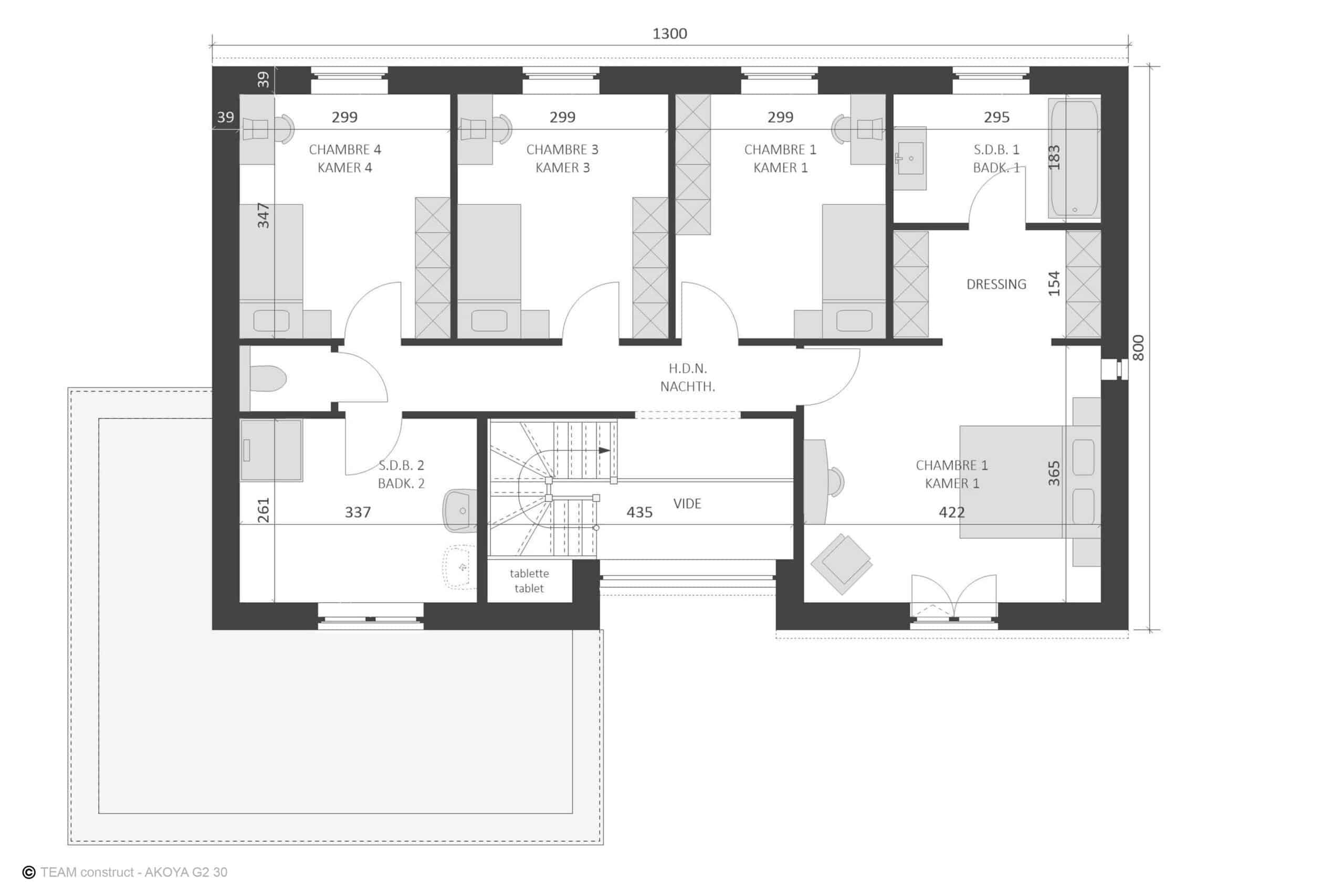
Nous créons pour vous l’architecture de demain. Conçue de façon très contemporaine grâce à ses grands espaces de vie, le design de cette villa se distingue par ses menuiseries modernes et les volumes saillants de ses façades bicolores. Au sud, grande pièce à vivre de plus de 50m², lumière et espace vont de pair. Le garage dispose d’un espace pour votre moto ou pour les vélos. Le garage de la version AKOYA G2 est prévu pour 2 voitures. L ‘étage supérieur avec son beau hall en mezzanine comprend 4 grandes chambres dont une suite parentale avec salle de bains et dressing. Il y a une deuxième grande salle de bains, ainsi que des toilettes séparées. Tous nos modèles peuvent être personnalisés selon vos envies… façades en bardage ou brique, combinaisons de couleurs, différentes dispositions pour l’étage supérieur… Contactez-nous pour plus de détails sur ce modèle.

Télécharger et imprimer les plans de cette maison Personnaliser cette maison Les témoignages de nos clients