All our houses are customizable, contact us for a personalized project.
13305 - Bonheiden (Rijmenam) - 2820
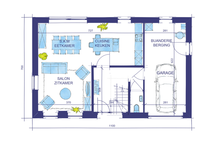
Number of rooms
4
Total floor area
1008 m²
Facade width
20 m
Price :
578.231€
excl. taxes
Price :
677.049€
charges included
Deze nieuwbouwwoning kan voor u gerealiseerd worden volgens de meest energiezuinige norm dankzij warmtepomp met vloerverwarming, driedubbele beglazing, ventilatie D, 13 zonnepanelen en een regenwaterput van 10.000L met 3 aansluitingen. De prijs ALL-IN bedraagt 677.049€ (grond + registratie + notaris + woning + 21 % btw + aansluiting nutsvoorzieningen) Contacteer ons voor meer info via inf@teamconstruct.be of 02/556.47.56