Back to the list

All our houses are customizable, contact us for a personalized project.

13269 - Zonnegem (St-Lievens-Houtem) - 9520

Number of rooms
3
Total floor area
648 m²
Facade width
10.56 m
Price : 474.942€ excl. taxes
Price : 563.185€ charges included

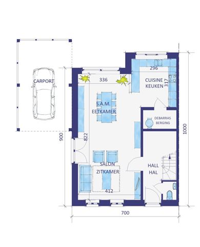
Deze zéér energiezuinige nieuwbouwwoning met energiepeil cat A kan voor u gebouwd worden volgens de meest energiezuinige norm dankzij warmtepomp (lucht/water) met vloerverwarming, ventilatiesysteem met dubbele luchtstroom en warmterecuperatie (systeem D), driedubbele beglazing, 13 zonnepanelen (445wp), performante isolatie en hoogwaardige afwerking door ons sterk lastenboek. Het ontwerp kan nog volledig aan uw smaak worden aangepast alsook de indeling en de afwerkingsgraad. Meer info via Team Construct op het nummer: 02/556.47.56. De prijs bedraagt ALL-IN : 563.185€ (Grond + registratie + notaris + woning + 21% btw + aansluitingskosten nutsvoorziening)

02 556 47 56