All our houses are customizable, contact us for a personalized project.
13218 - Betekom - 3130
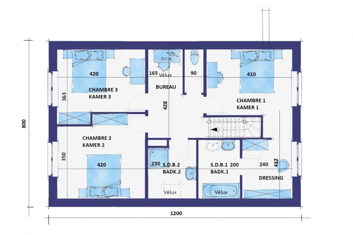
Nieuwbouw 4 gevel villa, bijna energieneutrale woning op een perceel bouwgrond van 11,47 are op korte afstand van het mooie Aarschot en midden in de Demervallei . Zeer laag energiepeil E-peil categorie A. De woning wordt voorzien van driedubbele beglazing, ventilatiesysteem type D, 13 fotovoltaïsche panelen (445 WP), warmtepomp lucht/water, vloerverwarming, performante isolatie en hoogwaardige afwerking terug te vinden in ons performant lastenboek. Tal van personalisatiemogelijkheden: indeling en materialen zijn vrij te kiezen. Meer info via Team Construct op het nummer: 02/556.47.56 of via info@teamconstruct.be, bezoek onze site www.teamconstruct.be, bezoek onze showroom en kijkwoningen op afspraak. Prijs ALL-IN: 585.700€.