Terug naar de lijst

Al onze huizen kunnen worden aangepast, neem contact met ons op voor een persoonlijk project

13354 - Hannut - 4280

Aantal kamers
4
Oppervlakte
1180 m²
Breedte van de grond
20 m
Prijs : 544.590€ exclusief kosten
Prijs : 646.479€ inclusief kosten

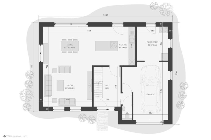
Proche de toutes les facilités, dans un quartier recherché avec vue dégagée sur la campagne, projet de villa basse énergie 100% traditionnelle k30 (triple vitrage,14 cm d'isolation dans les murs, entre 22 et 44 cm d'isolation en toiture,12 cm d'isolation dans le sol, panneaux solaires photovoltaiques compris) sur un terrain de 1180 m². La maison proposée se compose d'un beau salon salle à manger, d'une cuisine (non comprise), d'une buanderie, de 4 chambres, de 2 sdb (meuble compris), garage 1 voiture. Nombreuses possibilités de personnaliser ou de modifier le projet (possibilité d'agrandissement à petit prix). Grand choix de matériaux sans supplément. Finition clé sur porte en construction 100% traditionnelle avec cahier des charges très complet. Maison témoin Classic ouverte SUR RENDEZ-VOUS chaque samedi et dimanche de 14h00 à 18h00 à Chaumont-Gistoux, Chemin du Bonly face au n°67. Plus d'information www.teamconstruct.be ou 02/5564756. Prix hors frais. Vente sous régime T.VA. et droit d'enregistrement. PEB exceptionnel. Prix total: 646.479 ttc ( T.V.A. comprise, honoraire architecte compris, estimation de frais de raccordement compris, frais de notaire et d'enregistrement sur le terrain compris, bilan énergétique compris, une réserve de fondation comprise, coordinateur de sécurité compris, le sondage du terrain compris, l'étude de stabilité comprise, le PEB compris, ...) Plus d'information www.teamconstruct.be

02 556 47 56