Terug naar de lijst

Al onze huizen kunnen worden aangepast, neem contact met ons op voor een persoonlijk project

7241238 - Bonheiden (Rijmenam) - 2820

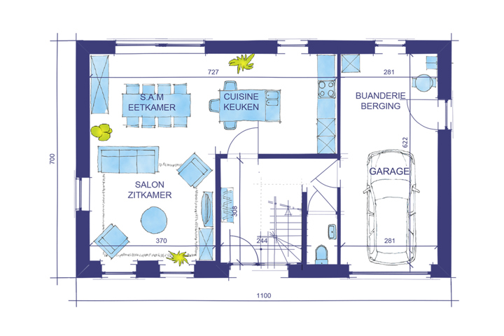
Aantal kamers
4
Oppervlakte
1008 m²
Breedte van de grond
20 m
Prijs : 578.231€ exclusief kosten
Prijs : 677.049€ inclusief kosten

Deze nieuwbouwwoning kan voor u gerealiseerd worden volgens de meest energiezuinige norm dankzij warmtepomp met vloerverwarming, driedubbele beglazing, ventilatie D, 13 zonnepanelen en een regenwaterput van 10.000L met 3 aansluitingen. De prijs ALL-IN bedraagt 677.049€ (grond + registratie + notaris + woning + 21 % btw + aansluiting nutsvoorzieningen) Contacteer ons voor meer info via inf@teamconstruct.be of 02/556.47.56

02 556 47 56