Terug naar de lijst

Al onze huizen kunnen worden aangepast, neem contact met ons op voor een persoonlijk project

7237885 - Neuville en Condroz (Bois de Rognac) - 4121

Aantal kamers
4
Oppervlakte
1524 m²
Breedte van de grond
22 m
Prijs : 697.188€ exclusief kosten
Prijs : 797.252€ inclusief kosten

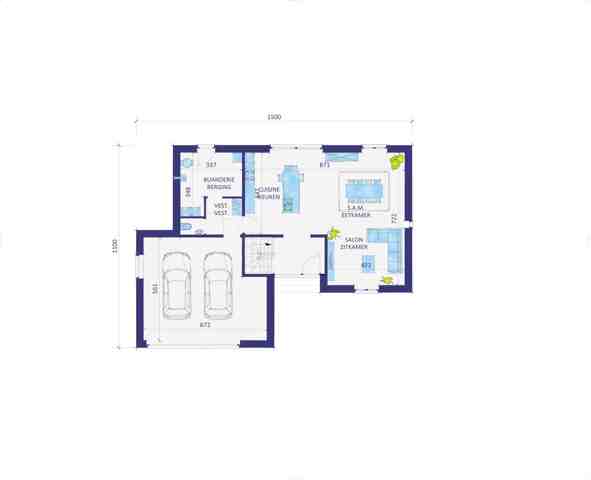
VILLA 4 FAÇADES PEB A+ HAUTE PERFORMANCE ÉNERGÉTIQUE & QUALITÉ TRADITIONNELLE DANS UN QUARTIER DE RENOM Découvrez ce projet de villa 4 façades à l’architecture soignée et aux performances énergétiques exceptionnelles (PEB A+), conçu par TEAM CONSTRUCT, un acteur reconnu dans la construction de maisons 100% traditionnelles. Un modèle de maison exemplaire avec des équipements de pointe : ✅ Triple vitrage pour une isolation optimale ✅ 13 panneaux solaires photovoltaïques pour une autonomie énergétique accrue ✅ Pompe à chaleur & chauffage par le sol pour un confort thermique incomparable ✅ Ventilation double flux avec récupérateur de chaleur pour un air sain et une consommation réduite Implantée sur un terrain de 1524m², cette maison allie modernité et respect de l’environnement. Vous bénéficiez d’une grande flexibilité : personnalisation du projet, choix des matériaux sans supplément, et possibilité de modifier le modèle selon vos envies. Une offre transparente et clé sur porte 🏡 Construction traditionnelle avec un cahier des charges très complet 🔍 Prix total de 797.252€ incluant : ✔️ La T.V.A. ✔️ Les honoraires de l’architecte ✔️ Une estimation des frais de raccordement ✔️ Les frais de notaire et d’enregistrement sur le terrain ✔️ Le bilan énergétique, la réserve de fondation, l’étude de stabilité… Visitez notre maison témoin 7J/7 sur rendez-vous ! TEAM CONSTRUCT, c’est plus de 30 ans d’expérience et des centaines de familles satisfaites. Faites le choix de la sérénité avec un constructeur de confiance. 📞 Plus d’informations sur www.teamconstruct.be ou au 02/556 47 56

02 556 47 56