Terug naar de lijst

Al onze huizen kunnen worden aangepast, neem contact met ons op voor een persoonlijk project

7049178 - Smetlede (Lede) - 9340

Aantal kamers
3
Oppervlakte
302 m²
Breedte van de grond
11.22 m
Prijs : 386.801€ exclusief kosten
Prijs : 461.539€ inclusief kosten

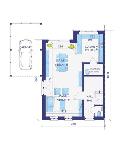
Deze zéér energiezuinige 3-gevek nieuwbouwwoning met energiepeil cat A kan voor u gebouwd worden volgens de meest energiezuinige norm dankzij warmtepomp (lucht/water) met vloerverwarming, ventilatiesysteem met dubbele luchtstroom en warmterecuperatie (systeem D), driedubbele beglazing, 13 zonnepanelen (445wp), performante isolatie en hoogwaardige afwerking door ons sterk lastenboek. Het ontwerp kan nog volledig aan uw smaak worden aangepast alsook de indeling en de afwerkingsgraad. Meer info via Team Construct op het nummer: 02/556.47.56. De prijs bedraagt ALL-IN : 461.539€ (Grond + registratie + notaris + woning + 21% btw + aansluitingskosten nutsvoorziening)

02 556 47 56