Toutes nos maisons sont personnalisables, contactez nous pour un projet personnalisé
13160 - Malonne - 5020
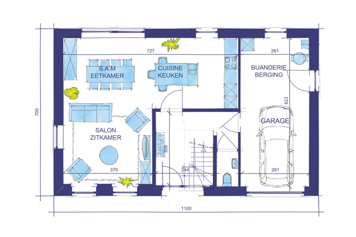
Un projet de villa Qzen: Quasi Zéro Energie. 100% Traditionnelle. PEB: A+ - Triple vitrage, panneaux photovoltaïques, ventilation double flux avec récupérateur de chaleur. Isolation des murs 14cm, du sol 12cm entre 22 et 44 cm d'isolation en toiture. Sur un terrain de 1585 m2. La maison proposée se compose d'un beau hall d’entrée, salon salle à manger, d'une cuisine non équipée, d’une buanderie et garage en annexe. A l’étage 3 chambres, une sdb avec meuble lavabo, appareils sanitaires et robinetterie inclus. Hall de nuit et bureau. Modification des plans et personnalisation (possibilité d'agrandissement). Grand choix de matériaux sans supplément. Finition clé sur porte en construction 100% traditionnelle avec cahier des charges très complet. Venez prendre des informations précises à notre splendide maison de Chaumont- Gistoux. En semaine et le samedi. N’hésitez plus, contactez-nous au 02/556 47 56 - Notre adresse, chemin du Bonly en face du n°73 à 1325 Chaumont-Gistoux. Le prix total du projet TVA comprise est de 545.347€ et comprend: maison, architecte, terrain, notaire, budget raccordements de 5.000€, réserve pour fondation de 15.000€, essai de sol, ingénieur, étude de stabilité, PEB, coordinateur sécurité, +…