Retour à la liste

Toutes nos maisons sont personnalisables, contactez nous pour un projet personnalisé

7224897 - Ladeuze - 7950

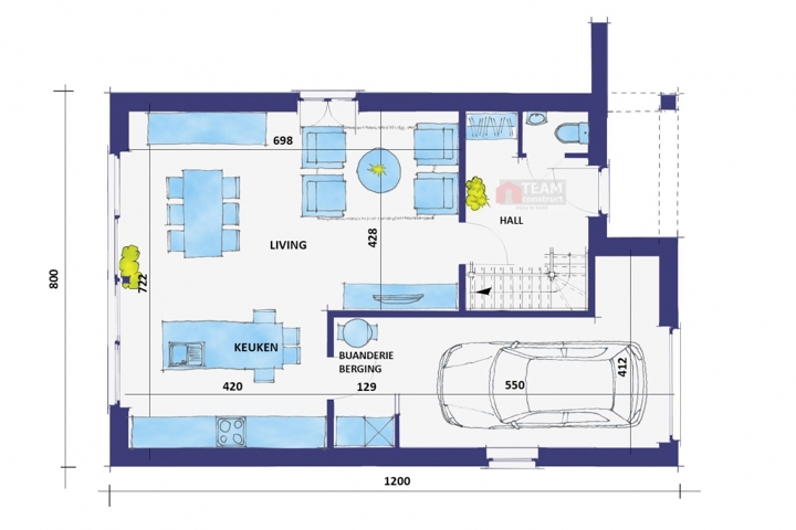
Nombre de chambres
3
Surface
2025 m²
Largeur de façade
16 m
Prix : 373.800€ hors frais
Prix : 440.598€ frais compris

🏡 VILLA PEB A+ QZEN – CONSOMMATION D’ÉNERGIE QUASI NULLE ! 🏡 Découvrez cette superbe villa 100% traditionnelle, conçue pour un confort absolu et une efficacité énergétique exceptionnelle ! Située dans un cadre agréable résidentiel. 🌟 Points forts de la villa : ✅ Construction ultra-performante Triple vitrage Isolation renforcée : 14 cm (murs), 12 cm (sol), 22 à 44 cm (toiture) ✅ Équipements écologiques & durables 13 panneaux solaires photovoltaïques (13x445 Wc) Pompe à chaleur & chauffage au sol Ventilation double flux avec récupérateur de chaleur. Citerne eau de pluie de 10000 litres. ✅ Beau terrain de 2025 m² . ✅ Agencement moderne & personnalisable Possibilité de modifications et agrandissements à petit prix Large choix de matériaux sans supplément ! 🏰 Finition clé sur porte – Prix fixe garanti dans le contrat! 💰 Prix total : 440.598€ TTC, comprenant : ✔ TVA incluse ✔ Honoraires d’architecte ✔ Frais de notaire & enregistrement sur le terrain ( sur une base de 3%) ✔ Études techniques (stabilité, PEB, sondage du terrain…) ✔ Coordinateur de sécurité & assurance décennale ✔ Budget frais de raccordement & Certibeau 📍 Visitez notre maison témoin ! 📆 Sur rendez-vous 7j/7 📞 02/5564756 🔗 Plus d’infos : www.teamconstruct.be

02 556 47 56