Retour à la liste

Toutes nos maisons sont personnalisables, contactez nous pour un projet personnalisé

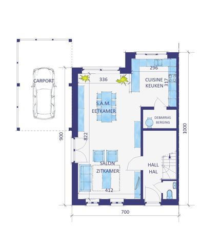
7049186 - Smetlede (Lede) - 9340

Nombre de chambres
3
Surface
317 m²
Largeur de façade
9.56 m
Prix : 386.801€ hors frais
Prix : 461.539€ frais compris

3-gevelwoning met EPC A – energiezuinig wonen in stijl Op zoek naar een moderne, energiezuinige woning met een traditionele kwaliteit? Deze prachtige 3-gevelwoning met EPC A is precies wat je nodig hebt. Ontworpen en gebouwd door TEAM CONSTRUCT, specialist in 100% traditioneel bouwen met meer dan 35 jaar ervaring. Waarom kiezen voor deze villa? 🔹 Topisolatie dankzij driedubbel glas 🔹 13 fotovoltaïsche panelen (5785Wp) voor een lager energieverbruik en meer onafhankelijkheid 🔹 Warmtepomp & vloerverwarming voor optimaal comfort 🔹 Ventilatiesysteem met warmterecuperatie voor gezonde lucht én een lagere energierekening Gelegen op een perceel van 317m², biedt deze woning een perfecte balans tussen modern wonen en milieuvriendelijkheid. Jouw woning, volledig op maat Bij TEAM CONSTRUCT kies jij: ✔️ De materialen – zonder extra kosten ✔️ De indeling – volledig aanpasbaar aan jouw wensen ✔️ Een transparante prijs – geen verrassingen achteraf Totaalprijs: 461.539€ inclusief: ✅ B.T.W. ✅ Architectenhonoraria ✅ Raming van aansluitingskosten ✅ Notaris- en registratierechten op de grond ✅ Energieverslag, funderingsreserve, stabiliteitsstudie… Bezoek onze kijkwoning – 7 dagen op 7 op afspraak! Ontdek zelf waarom zoveel gezinnen voor TEAM CONSTRUCT kiezen. 📞 Bel ons op 02/556 47 56 🌐 Meer info op www.teamconstruct.be

02 556 47 56