Retour à la liste

Toutes nos maisons sont personnalisables, contactez nous pour un projet personnalisé

13111 - Beerse - 2340

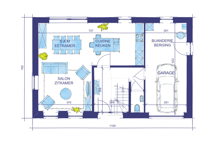
Nombre de chambres
4
Surface
720 m²
Largeur de façade
20.94 m
Prix : 536.231€ hors frais
Prix : 629.234€ frais compris

Deze hedendaagse woning kan voor u gerealiseerd worden volgens de meest energiezuinige norm (BEN) dankzij warmtepomp met vloerverwarming , ventilatie D, driedubbele beglazing, 13 zonnepanelen en regenwaterput van 10.000 L. U kan dit project nog volledig volgens uw smaak aanpassen. De prijs voor dit project bedraagt 629.234€ ALL-IN (Bouwgrond+registratie+notaris+woning+21 % btw + aansluiting nutsvoorzieningen) Voor meer info contacteer ons via info@teamconstruct.be of 02/556.47.56

02 556 47 56