Retour à la liste

Toutes nos maisons sont personnalisables, contactez nous pour un projet personnalisé

13120 - Aalter - 9880

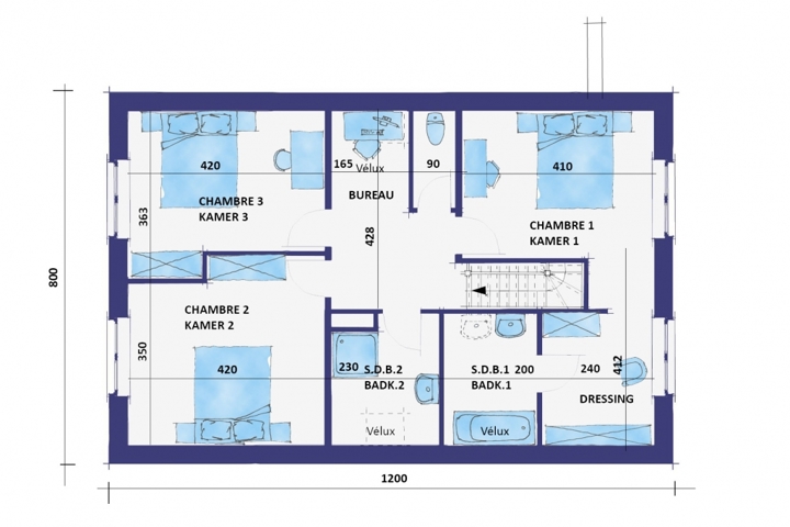
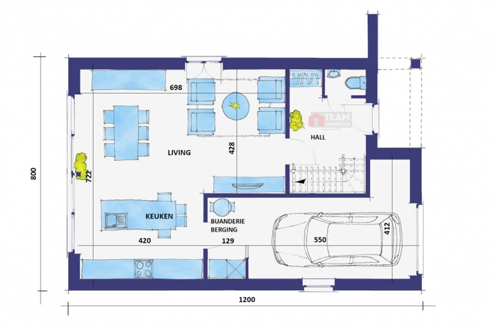
Nombre de chambres
3
Surface
580 m²
Largeur de façade
19.7 m
Prix : 538.709€ hors frais
Prix : 634.984€ frais compris

Deze nieuwbouwwoning kan u gerealiseerd worden volgens meest energiezuinige norm, dankzij warmtepomp met vloerverwarming. Ventilatie D, driedubbele beglazing en 13 zonnepanelen. De woning kan nog volgens uw smaak worden aangepast, zowel qua architectuur, indeling als afwerking. De prijs bedraagt ALL-IN : € 634.984 (Grond + registratiekosten + notaris + woning + 21% btw + aansluiting nutsvoorzieningen). Meer info? Contacteer ons via info@teamconstruct.be of 02/556.47.56

02 556 47 56