Retour à la liste

Toutes nos maisons sont personnalisables, contactez nous pour un projet personnalisé

13037 - Deinze - 9800

Nombre de chambres
3
Surface
552 m²
Largeur de façade
15 m
Prix : 420.941€ hors frais
Prix : 498.088€ frais compris

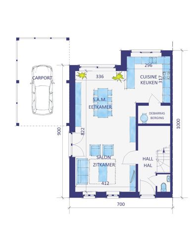
Hedendaagse landelijke 3-gevel woning, nieuw te bouwen, kan aan 6 % BTW!!!! Deze hedendaagse drie gevel nieuwbouwwoning kan u gerealiseerd worden volgens meest energiezuinige norm, dankzij warmtepomp met vloerverwarming. Ventilatie D, driedubbele beglazing en 13 zonnepanelen. De woning kan nog volgens uw smaak worden aangepast, zowel qua architectuur, indeling als afwerking. De prijs bedraagt ALL-IN : € 498.088€ (Grond + registratiekosten + notaris + woning + 21% btw + aansluiting nutsvoorzieningen). Meer info? Contacteer ons via info@teamconstruct.be of 02/556.47.56

02 556 47 56