Retour à la liste

Toutes nos maisons sont personnalisables, contactez nous pour un projet personnalisé

13110 - Blaasveld - 2830

Nombre de chambres
3
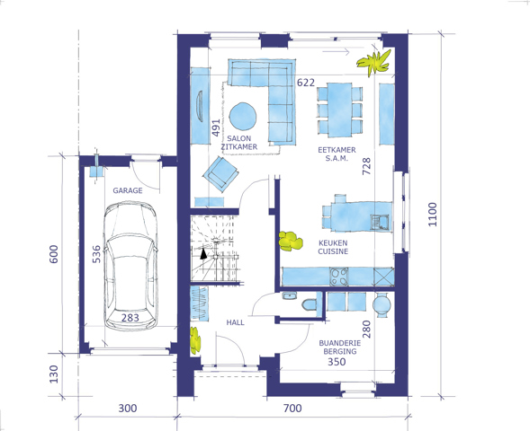
Surface
431 m²
Largeur de façade
11 m
Prix : 429.809€ hors frais
Prix : 509.568€ frais compris

Deze nieuwbouwwoning kan voor u gerealiseerd worden volgens de meest energiezuinige norm dankzij warmtepomp met vloerverwarming, ventilatie D, driedubbele beglazing , 13 zonnepanelen en een regenwaterput met 3 aansluitingen van 10.000 L. De prijs voor dit project ALL-IN bedraagt 509.568€ (Grond + registratie + notaris + woning +21 % btw + aansluitingskosten nutsvoorziening). Voor meer info contacteer ons via info@teamconstruct.be of 02/556.47.56

02 556 47 56