Retour à la liste

Toutes nos maisons sont personnalisables, contactez nous pour un projet personnalisé

13151 - Perwez - 1360

Nombre de chambres
4
Surface
994 m²
Largeur de façade
16 m
Prix : 436.729€ hors frais
Prix : 519.102€ frais compris

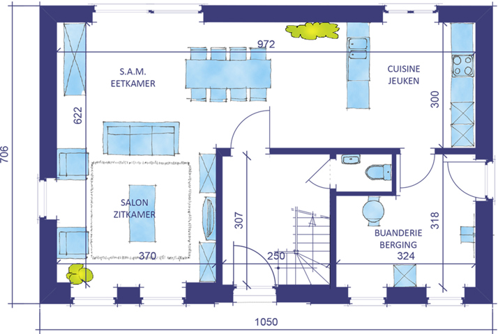
Sur un terrain plat proche des facilités dans une rue très calme, projet de villa basse énergie PEB A+ ,100% traditionnelle k30 (triple vitrage,14 cm d'isolation dans les murs, entre 22 et 44 cm d'isolation en toiture,12 cm d'isolation dans le sol, panneaux solaires photovoltaiques compris.) sur un terrain de 994 m². La maison proposée se compose d'un beau salon salle à manger, d'une cuisine (non comprise), d'une buanderie, de 4 chambres, de 1 sdb (meuble compris). Nombreuses possibilités de personnaliser ou de modifier le projet (possibilité d'agrandissement à petit prix). Grand choix de matériaux sans supplément. Finition clé sur porte en construction 100% traditionnelle avec cahier des charges très complet. Maison témoin ouverte chaque samedi et dimanche de 14h00 à 18h00 à Chaumont-Gistoux SUR rendez-vous: Chemin du Bonly face au n°67. Plus d'information www.teamconstruct.be ou 02/556.47.56. Prix hors frais. Vente sous régime T.VA. et droit d'enregistrement. PEB exceptionnel. Prix total: 519.102€ ttc ( T.V.A. comprise, honoraire architecte compris, estimation de frais de raccordement compris, frais de notaire et d'enregistrement sur le terrain compris, bilan énergétique compris, une réserve de fondation comprise, coordinateur de sécurité compris, le sondage du terrain compris, l'étude de stabilité comprise, le PEB compris, ...) Plus d'information www.teamconstruct.be

02 556 47 56