Toutes nos maisons sont personnalisables, contactez nous pour un projet personnalisé
13101 - Serskamp (Wichelen) - 9260
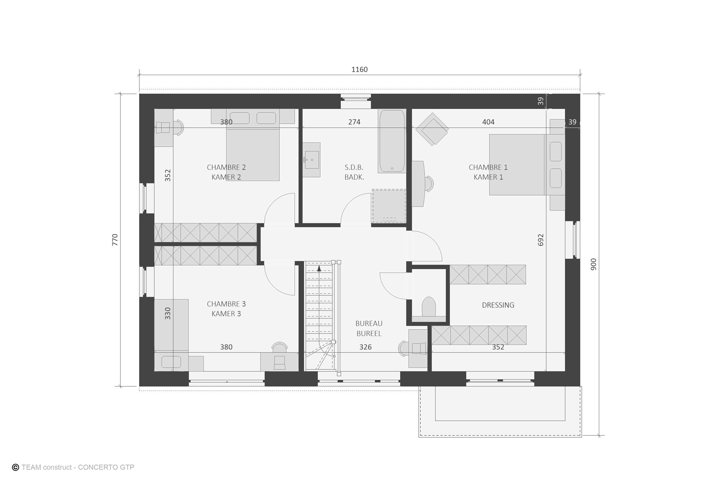
Nombre de chambres
3
Surface
536 m²
Largeur de façade
21 m
Prix :
467.926€
hors frais
Prix :
556.345€
frais compris
Deze zéér energiezuinige nieuwbouwwoning met energiepeil cat A kan voor u gebouwd worden volgens de meest energiezuinige norm dankzij warmtepomp (lucht/water) met vloerverwarming, ventilatiesysteem met dubbele luchtstroom en warmterecuperatie (systeem D), driedubbele beglazing, 13 zonnepanelen (445wp), performante isolatie en hoogwaardige afwerking door ons sterk lastenboek. Het ontwerp kan nog volledig aan uw smaak worden aangepast alsook de indeling en de afwerkingsgraad. Meer info via Team Construct op het nummer: 02/556.47.56. De prijs bedraagt ALL-IN : 556.345€ (Grond + registratie + notaris + woning + 21% btw + aansluitingskosten nutsvoorziening)