Retour à la liste

Toutes nos maisons sont personnalisables, contactez nous pour un projet personnalisé

11987 - Opwijk - 1745

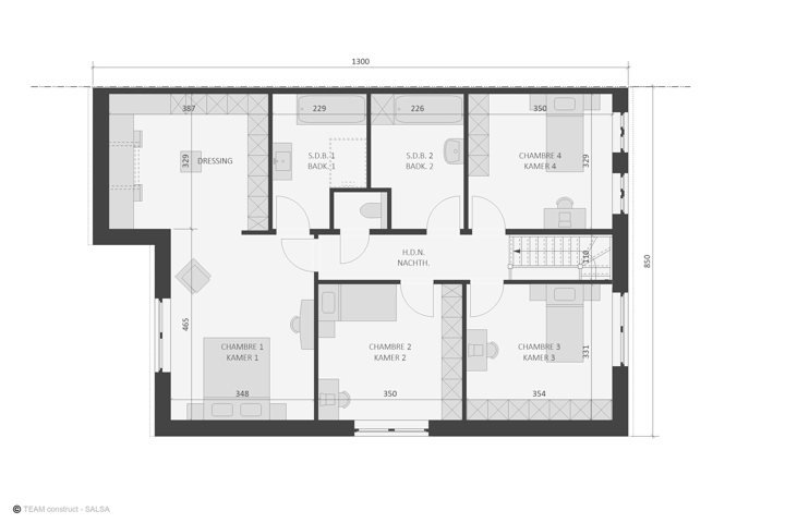
Nombre de chambres
4
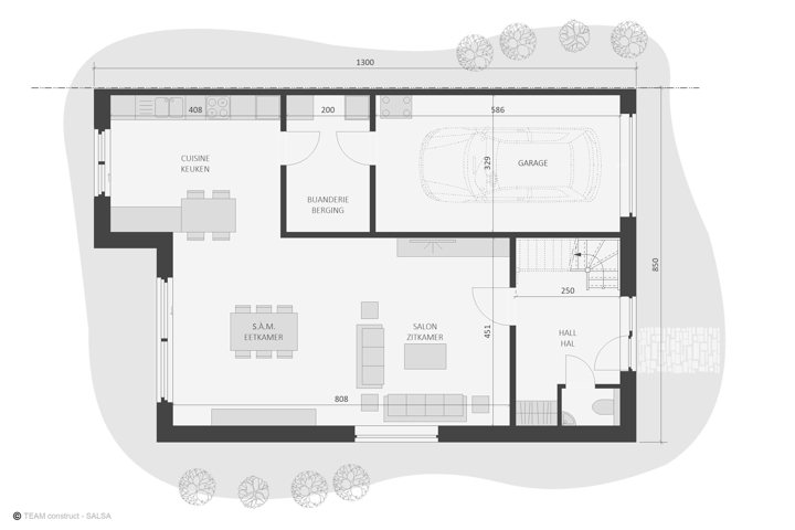
Surface
625 m²
Largeur de façade
11.9 m
Prix : 472.042€ hors frais
Prix : 555.061€ frais compris

Nieuwbouw 3 gevel villa, bijna energieneutrale woning op een perceel bouwgrond van 625m², met ideale zuidwest oriëntatie! Goede verbinding richting Asse/Brussel en Dendermonde en op korte afstand van winkels, scholen en openbaar vervoer. Zeer laag energiepeil E-peil categorie A. De woning wordt voorzien van driedubbele beglazing, ventilatiesysteem type D, 13 fotovoltaïsche panelen (445 WP), warmtepomp lucht/water, vloerverwarming, performante isolatie en hoogwaardige afwerking door ons sterk lastenboek. Tal van personalisatiemogelijkheden: indeling en materialen zijn vrij te kiezen. Meer info via Team Construct op het nummer: 02/556.47.56 of via info@teamconstruct.be, bezoek onze site www.teamconstruct.be, bezoek onze showroom te Sint-Pieters-Leeuw op afspraak. Prijs ALL-IN: € 555.061.

02 556 47 56